Moradia arquitetura moderna, construída em 2019, um projecto idealizado e pensado para utilização como habitação própria permanente. Moradia com características modernas e comodidades bastante atrativas, como os pavimentos em mármore, paredes revestidas a microcimento, cozinha equipada com eletrodomésticos SMEG, revestimento da bancada de cozinha e espelho em Granito Lemon Gold, lareira com recuperador de calor com distribuição de calor para todos os quartos.
Piscina exterior com vista para o campo, e quartos com terraço privativo e vista para o mar.
A localização é um dos pontos fortes deste imóvel, a moradia foi implantada numa zona tranquila da urbanização, estando a pouco mais de 700 metros da Praia de Altura.
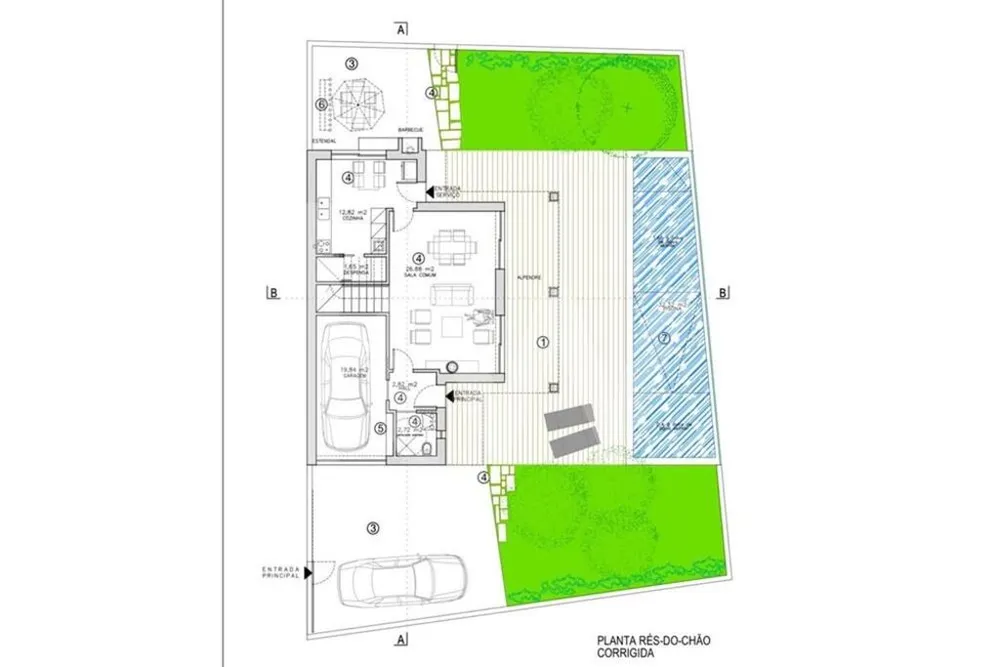
Na zona exterior da moradia, foi aplicado DECK permeável em compósito misto reciclado com madeira, zona ajardinada, e também foi aplicado nomeadamente na zona da entrada a tradicional calçada portuguesa. O mármore português uma das pedras mais apreciadas quer em Portugal quer no estrangeiro, o Mármore Estremoz Branco tem como características a vergada ou também chamada raiada que varia muito na cor e no padrão. Para muitos apreciadores, é algo único e muito requisitado. Sim, nesta moradia pode encontrar várias divisões onde pode apreciar as peças de mármore Estremoz. Sistema de som e ponto luz em led embutidos no teto falso de todas as divisões. A moradia está equipada com sistema de aspiração central, pré-instalação de ar condicionado em todas as divisões, sistema de vídeo vigilância, estores eléctricos com comando individual para cada janela e um único comando central de forma a fechar automaticamente todas as janelas em simultâneo. Todos os quartos com roupeiros embutidos, o quarto em suíte no rés-do-chão da moradia dispõe de um closet. Na zona social, quartos e zonas de circulação foi aplicado pavimento madeira Lamparquet, nas casas de banhos e cozinha, mármore Estremoz. Na cave, com àrea total de 65.08m2, atualmente dividida em em ambientes (escritório, lavandaria e zona social/diversão).
Explore o vídeo promocional e embarque numa experiência virtual para conhecer o seu futuro lar!
