Quer vender a sua casa?

Comprar
Moradia
Moradia T3 + 1 Rio Seco na Serra Algarvia 59

Moradia T3 + 1| Garagem | Rio Seco | Algarve | Serra Algarvia

595,000 €
Moradia T3 com acabamentos rústicos, inserida numa Zona tranquila da serra algarvia a poucos minutos da vila de Castro Marim, praia verde, Altura.

Descrição

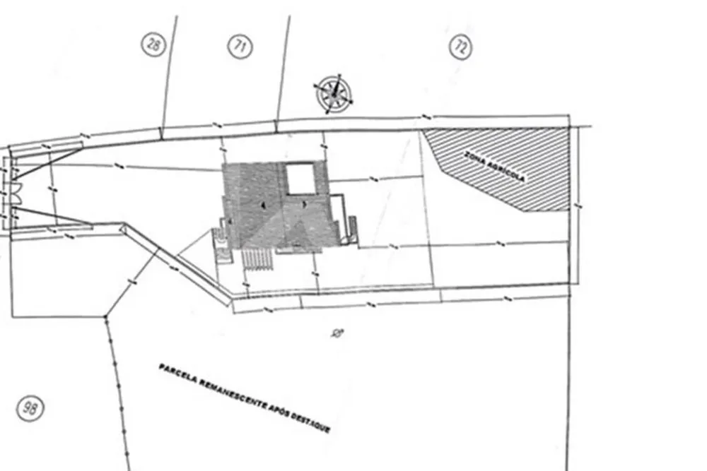
Moradia tipologia T3 com acabamentos rústicos, inserida num perímetro urbano com área total de terreno 1793m2. Zona tranquila da serra algarvia a poucos minutos da vila de Castro Marim, praia verde, Altura.

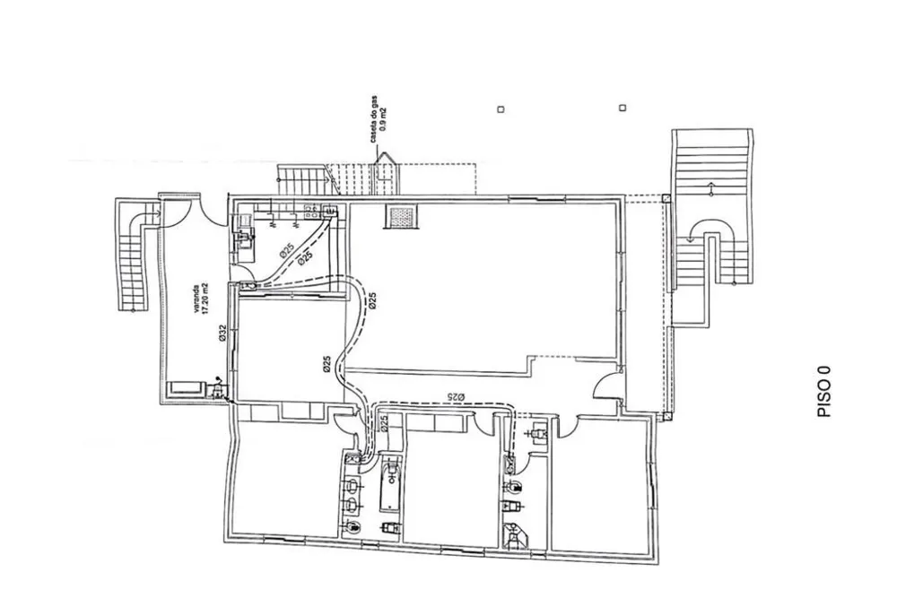
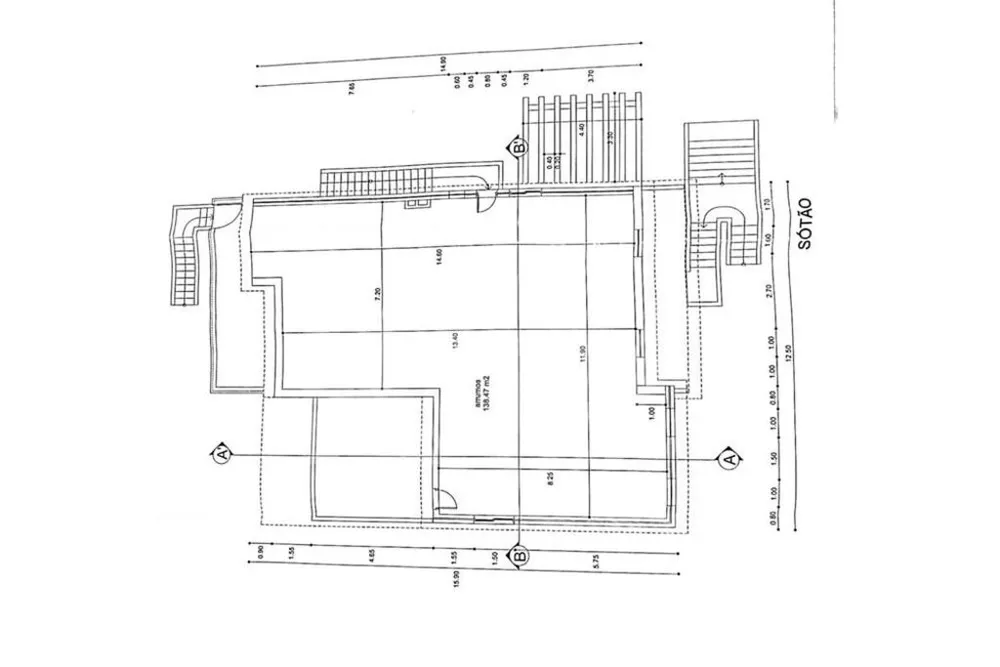
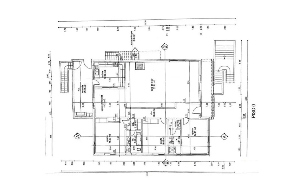
Uma moradia construída em 2009 com todo o bom gosto, toda a zona envolvente à moradia está pavimentada com calçada portuguesa, no piso térreo da moradia temos uma generosa garagem, com capacidade para 3 a 4 viaturas, portão eléctrico e uma porta de origem marroquina, devidamente restaurada, com acesso a uma zona social. O acesso ao piso superior é desde o exterior, onde temos uma sala de estar e refeições com aproximadamente 80m2, cozinha totalmente equipada (Open space). No primeiro piso da moradia temos ainda a zona de descanso, uma suíte, dois quartos e uma casa de banho, todas as divisões tem ar condicionado instalado.No último piso da moradia tem o sótão, uma divisão com cozinha, casa de banho, zona social e zona de descanso, com varanda exterior.

Na zona exterior da moradia existe um agradável jardim com acesso direto desde a sala de estar, a construção da moradia foi pensada ao detalhe e permite o acesso de carro ao piso superior. Nas traseiras da moradia existe uma zona de terreno onde tem algumas oliveiras, laranjeiras, nesta zona existe a possibilidade de construir PISCINA, caso seja do interesse.Vários apontamentos de origem marroquina, tais como portas de entrada, elementos esses restaurados e com mais de 100 anos de história.

Edifício de apoio a uma futura piscina com balneário, barbecue, bancada de cozinha, forno.

Esta moradia com localização privilegiada em pela serra algarvia, com orientação solar, sul/nascente, uma zona tranquila, a poucos minutos de carro de Castro Marim, Praia Verde, Altura. 1 suite2 quartosGaragem fechada com 200m2 aproximadamenteBarbecueForno de lenhaPainel solar ligado a depósito de água
Armários embutidos Cozinha equipadaCaixilharia alumínio com vidro DuploLavandariaAr condicionado

A moradia é vendida sem o mobiliário apresentado na fotografias, existe a possibilidade de vender o mobiliário existente no interior e exterior da moradia.

Aguardo sua visita!
Obrigado

Características
cozinha_equipada
varios_eletrodomesticos
churrasqueira
parqueamento
terraco
varanda
jardim
lareira
ar_condicionado
portoes_eletricos
video_porteiro
vista_campo
vista_montanha
Localização

Castro Marim

INFORMAÇÃO:

A nossa agência KW FLASH tem um Intermediário de Crédito Autorizado pelo Banco de Portugal, se precisar de financiamento bancário podemos ajudar.
Na KW Flash partilhamos negócios 50/50 com todos os consultores imobiliários ou agências com licença AMI porque juntos podemos fazer mais pelos nossos clientes.

Se és profissional do sector imobiliário e tens um cliente qualificado, contacta-me e agendamos uma visita, pois este imóvel encontra-se em exclusivo, para prestar um serviço de excelência.

Aguardo a sua visita!
Mais informações
(+351) 962 886 150

Também lhe podem interessar

Outros imóveis

Moradia de Luxo em Vila Nova de Cacela | 600 m Monte Rey Golf

2,225,000 €
Comprar

Apart. T3 na Covilhã | Piscina | Garagem | Acabamentos Premium

270,000 €
Comprar

Moradia T3 | Praia verde | Algarve | 600 metros da Praia

1,595,000 €
Comprar